Beretta POWER MAX 50 P Modulo termico murale a condensazione tipo B3 premiscelato 20128430
Risparmi: 2.972,97 € (46%)
Prodotto fuori produzione non più ordinabile dal produttore.
Specifiche Tecniche
| Dimensioni: | L:43,5 P:60 H:100 cm |
|---|---|
| Utilizzo: | Riscaldamento |
| Tipo combustibile: | Metano |
| Classe energetica R: | A |
Chiedi al tuo consulente
Richiedi un supporto tecnico, maggiori informazioni o un preventivo personalizzato.
Descrizione
Dettagli prodotto
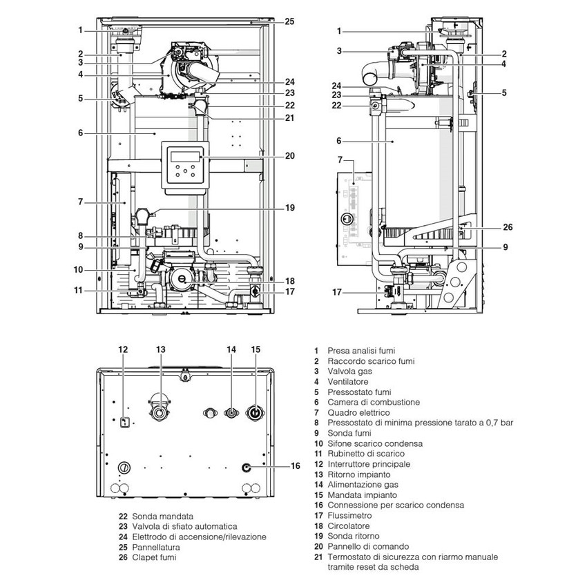
Caldaia a condensazione Murale Beretta Power Max 50 P, a Metano, per Riscaldamento, da Interno, kW potenza 50, classe energetica R A, lunghezza cm 60, larghezza cm 43.5, altezza cm 100 - 20128430
Beretta modulo termico murale a condensazione da interno, tipo B3 premiscelato.
Caratteristiche tecniche
- Nuovo scambiatore condensante in acciaio INOX
- Premiscelazione totale e basse emissioni inquinanti: classe 6
- Possibilità di cascata fino a 1120 kW con logiche integrate in caldaia
- Termoregolazione di serie con sonda esterna optional
- Possibilità di installazione in batteria con telaio in linea o fronte-retro
- Possibilità di utilizzo sul primario di circolatori basso consumo (anche logica Δt) o di valvole due vie
- Regolazione modulante e modulare della potenza
- Inversione automatica (ad intervalli di tempo regolabili) dell’ordine di accensione dei bruciatori
- Gestione contemporanea di due circuiti: bollitore, alta temperatura
- Gestione fino a 16 zone con kit optional
- Commutazione automatica estate / inverno
- Funzione antilegionella di serie
- Predisposizione per gestione a distanza (ingresso 0-10V o Modbus) con kit optional
- Clapet fumi integrato in caldaia
- Disponibilità di un’ampia gamma di accessori d’impianto
- Kit trasformazione a gas GPL di serie
Scarico fumi Ø80 mm.
Specifiche prodotto
| Lunghezza/Profondità (cm): | 60 |
|---|---|
| Larghezza (cm): | 43,5 |
| Altezza (cm): | 100 |
| Peso (kg): | 65 |
| Utilizzo: | Riscaldamento |
| Installazione: | Interno |
| Posizionamento: | Murale |
| Tipo combustibile: | Metano |
| Potenza (kW): | 50 |
| Classe energetica R: | A |
| Modello: | 50 P |
| Numero articolo: | 20128430 |
Varianti
Varianti
Galleria immagini prodotto
Le immagini vengono fornite dai produttori e hanno scopo puramente illustrativo. Si declina ogni responsabilità per l'eventuale mancata corrispondenza tra immagini e testi. Per le caratteristiche del prodotto attenersi a quanto in descrizione. Le cartelle colore ha valore dimostrativo. I colori, le tonalità e le finiture superficiali riportate sono da intendersi puramente indicative. La resa cromatica dipende dal materiale e può subire variazioni nel tempo.