Dab Pumps FEKAFOS MAXI 1200 - DN 50 stazione di sollevamento per due pompe 1200 litri versione con camera a valvole, griglia di filtraggio e griglia anti intrusione 60190415
Risparmi: 5.464,83 € (44%)
Prodotto da ordinare: dopo che avrai completato l'ordine ed il pagamento, il prodotto sarà ordinato dal produttore che impiegherà circa 3-5 settimane per la consegna ai nostri magazzini.
Specifiche Tecniche
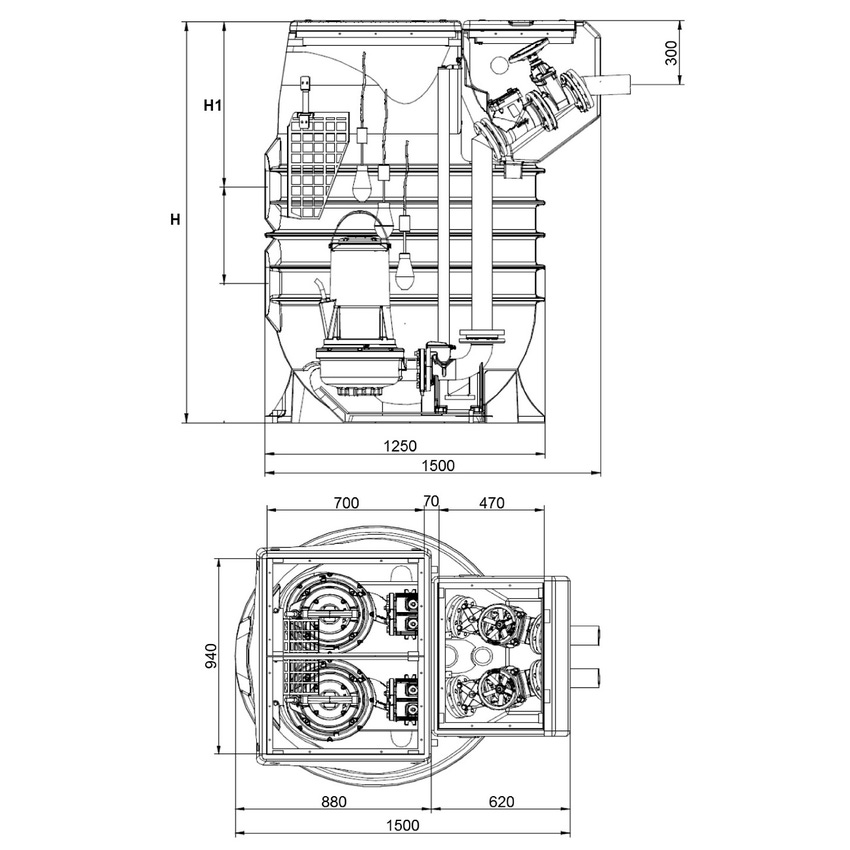
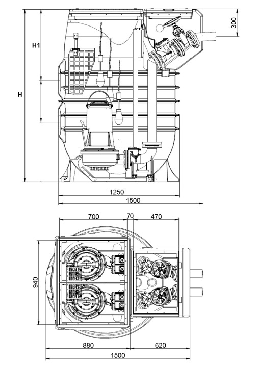
Dimensioni: | L:150 P:125 H:142 cm |
---|---|
Portata massima (m³/h): | 100 |
Prevalenza massima (m): | 40 |
Pompe e quadro elettrico non inclusi, da ordinare separatamente

Richiedi un supporto tecnico, maggiori informazioni o un preventivo personalizzato.
Descrizione
Dettagli prodotto
Dab Pumps Stazioni automatiche di sollevamento FEKAFOS MAXI 1200 - DN 50 versione CV + GR, 125 cm lunghezza, 150 cm larghezza, 142 cm altezza, kg 215 - 60190415
Caratteristiche tecniche
- Versione con: camera valvole + griglia di filtraggio + grata antintrusione
- Liquido pompato: Acque reflue con corpi filamentosi, acque cariche, acque freatiche, acque piovane, acqua grigie e acque di fiume o lago. Liquidi compatibili con la norma EN 12050-1, EN 12050-2
- Temperatura del liquido: Da 0°C a +50°C
- Tipi di installazione possibile: All’interno o all’esterno di un edificio, fissata al pavimento, interrata, calpestabile, carrabile con apposito accessorio.
- Capacità: 1.200 lt.
- Materiale: LLDPE
Stazioni automatiche di raccolta e sollevamento predisposte per l’installazione di due pompe e progettate per l’accumulo di acque di scarico, acque grigie e chiare in ambiti civili e commerciali. Può essere installata all’interno o all’esterno di un edificio, fissata al pavimento o interrata. È calpestabile, carrabile se dotata di apposito accessorio.
Componenti inclusi:
- Camera valvole:
- 2 valvole di ritegno a palla, in ghisa sferoidale;
- 2 valvole a saracinesca in ghisa sferoidale;
- 2 tubazioni di uscita in PE.
- Griglia di filtraggio: cestello estraibile in acciaio inox con griglia di filtraggio ingresso 40x40mm.
- Grata antintrusione: telaio e griglie in acciaio per protezione apertura superiore di accesso alla vasca.
Pompe utilizzabili:
- FEKA VS
- GRINDER FX M-NA/T-NA
- DRENAG FX M-NA/T-NA
- FEKA FXV 20 M-NA/T-NA
- FEKA FXC 20 M-NA/T-NA
Specifiche prodotto
Peso (kg): | 215 |
---|---|
Lunghezza/Profondità (cm): | 125 |
Larghezza (cm): | 150 |
Altezza (cm): | 142 |
Capacità (l): | 1.200 |
Portata massima (m³/h): | 100 |
Prevalenza massima (m): | 40 |
Modello: | FEKAFOS MAXI 1200 - DN 50 versione CV + GR |
Numero articolo: | 60190415 |
Varianti
Varianti
Galleria immagini prodotto
Le immagini vengono fornite dai produttori e hanno scopo puramente illustrativo. Si declina ogni responsabilità per l'eventuale mancata corrispondenza tra immagini e testi. Per le caratteristiche del prodotto attenersi a quanto in descrizione. Le cartelle colore ha valore dimostrativo. I colori, le tonalità e le finiture superficiali riportate sono da intendersi puramente indicative. La resa cromatica dipende dal materiale e può subire variazioni nel tempo.

Risparmi: 5.464,83 € (44%)