Irsap IRSAIR H 1200 controllo E unità di ventilazione a doppio flusso con recupero di calore con controllo remoto Touch Screen, posizionamento orizzontale URED120HRE000
Risparmi: 5.136,79 € (39%)
Prodotto fuori produzione non più ordinabile dal produttore.
Specifiche Tecniche
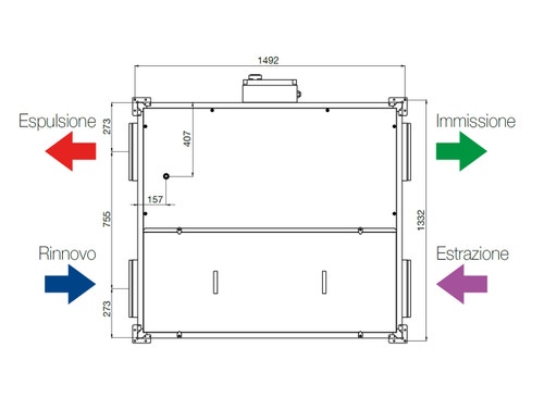
Dimensioni: | L:148,3 P:155,5 H:59,2 cm |
---|---|
Alimentazione: | Monofase |
Modello: | IRSAIR H 1200 controllo E |
Numero articolo: | URED120HRE000 |
La complessità impiantistica richiede una consulenza specifica

Richiedi un supporto tecnico, maggiori informazioni o un preventivo personalizzato.
Descrizione
Dettagli prodotto
Ventilatore posizionamento Soffitto/pavimento Orizzontale Irsap IRSAIR H 1200 controllo E, Monofase, 69 dBA pressione sonora , 230 V tensione a 50 Hz, 949 W potenza totale, 1741 m3/h portata aria, efficienza recupero di calore >90%, controllo remoto versione E Touch Screen, 155.5 cm lunghezza, 148.3 cm larghezza, 59.2 cm altezza - URED120HRE000
Unità di ventilazione a doppio flusso con recupero di calore.
Unità per installazione a soffitto, monoblocco, specifica per edifici in cui necessità ventilare gli ambienti. Installabile anche a pavimento.
CARATTERISTICHE COSTRUTTIVE
Struttura portante in profilati in alluminio estruso e pannelli sandwich di spessore 25 mm, in Aluzinc® con isolante in schiuma poliuretanica interposto. Accesso rapido e facile per manutenzione ed ispezione interna con portelli dotate di maniglie.
Filtri di classe ePM1 70% ISO16890 (F7 EN779) a bassa perdita di carico sulla presa dell’aria di rinnovo e di estrazione dell’aria viziata. Sulla presa dell’aria di rinnovo filtro con trattamento antibatterico brevettato Air’Suite®. Ventilatori centrifughi a pale rovesce con motori a controllo elettronico della velocità ad alta efficienza e basso livello sonoro. Scambiatore di calore statico in alluminio in controcorrentecertificato Eurovent per il recupero del calore sensibile. Bypass parziale motorizzato per free cooling e free heating. Pannelli con imbocchi circolari con guarnizione di tenuta per collegamento alle canalizzazioni dell’aria facilmente invertibili per adattarsi a diverse configurazioni dei canali in ingresso ed in uscita.
Quadro elettrico con interruttore di manovra, morsettiera e scheda elettronica di controllo con microprocessore. Regolazione dedicata con gestione automatica del by-pass e funzione antigelo per evitare il brinamento dello scambiatore di calore gestendo la velocità dei
ventilatori o, se installata, una resistenza elettrica di preriscaldamento. Controllo sporcamento filtri tramite contaore oppure con pressostati interni installati a richiesta.
Gestione di eventuali accessori di post-trattamento. Funzionamento a pressione costante o portata costante mediante sensori (accessori esterni a richiesta) sia sul canale di immissione che sul canale di estrazione. Possibilità di pilotaggio con ingressi digitali per accendere
e spegnere, impostare la stagione, abilitare la funzione booster, gestire le velocità in funzione di umidostati o sonde di umidità o qualità dell’aria (accessori esterni a richiesta).
PRESTAZIONI MASSIME
Portata aria 1741 m³/h con prevalenza 100 Pa, assorbimento elettrico massimo 949 W.
Caratteristiche tecniche
- Pannello di controllo remoto Touch Screen retroilluminato a colori
- Classe filtro aspirazione: ePM1 70% (F7) antibatterico Air’Suite®
- Classe filtro ripresa: ePM1 70% (F7)
- Grado di protezione: IP20
Specifiche prodotto
Lunghezza/Profondità (cm): | 155,5 |
---|---|
Larghezza (cm): | 148,3 |
Altezza (cm): | 59,2 |
Peso (kg): | 147 |
Posizionamento: | Soffitto/pavimento |
Orientazione: | Orizzontale |
Alimentazione: | Monofase |
Portata aria (m³/h): | 1.741 |
Pressione sonora (dBA): | 69 |
Tensione a 50 Hz (V): | 230 |
Potenza totale (W): | 949 |
Efficienza recupero di calore: | >90% |
Controllo remoto: | Versione E Touch Screen |
Materiale: | Profilati alluminio estruso e pannelli in Aluzinc® |
Modello: | IRSAIR H 1200 controllo E |
Numero articolo: | URED120HRE000 |
Galleria immagini prodotto
Le immagini vengono fornite dai produttori e hanno scopo puramente illustrativo. Si declina ogni responsabilità per l'eventuale mancata corrispondenza tra immagini e testi. Per le caratteristiche del prodotto attenersi a quanto in descrizione. Le cartelle colore ha valore dimostrativo. I colori, le tonalità e le finiture superficiali riportate sono da intendersi puramente indicative. La resa cromatica dipende dal materiale e può subire variazioni nel tempo.